00件
最近見た物件
00件
検討リスト
株式会社トミタ アイホーム > 物件一覧 > 物件詳細
お部屋の広さ40.22㎡。セキュリティ面は、オートロック・TVインターホンなど充実しているので、防犯対策もばっちりです。とてもゆとりのある環境が魅力の月20.2万円の物件。徒歩3分で駅にアクセスできる物件です。トミタ が住まい探しをお手伝い致します。こだわりたいお部屋の条件を03-3380-7556からお申しつけ下さい。


※1. 仲介手数料は仮の価格となりますので、実際の価格に関してはお気軽にお問い合わせ下さい。
※2. 1か月を30日として計算しています。
※3. その他費用の項目は、鍵交換代、保険料になります。

| 所在地 | 東京都中野区本町1丁目 | ||
|---|---|---|---|
| 交通 | |||
| 間取り/詳細 |
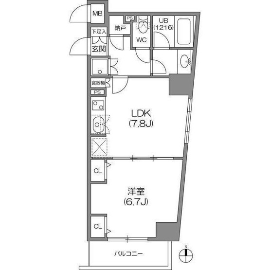
1DK DK 7.8帖/洋室 6.7帖 |
面積/バルコニー面積 | 40.22㎡/- |
| 賃料 | 20.2万円 | 管理費・共益費 | 15,000円 |
| 敷金/礼金/保証金 | 0ヶ月/0ヶ月/0ヶ月 | 償却/敷引 | -/- |
| 更新料 | 1ヶ月(新賃料) | 敷金積み増し | - |
| 権利金/雑費 | -/- | 駐車場/月額料金 | -/- |
| 保険加入/料金 | 有/22,000円 | 保険名/保険期間 | 火災保険/2年 |
| 保証人代行義務 | 必加入 | 保証会社 | その他 |
| 保証会社詳細 | 詳細はスタッフまで | 向き | 南 |
| 築年月(築年数) | 2006年 8月 (築19年) | 契約期間 | 2年 |
| 種別/構造 | マンション/鉄筋コンクリート | 部屋/所在階/階建 | -/ 2階/ 11階建 |
| 総戸数 | 62戸 | 現況/入居可能日 | 空家/即時 |
| 特優賃 | - | 取引態様/賃貸区分 | 仲介/一般 |
| 物件番号 | 100373449 | 取引条件の有効期限 | 2026年02月26日 |
| 設備条件 |
|
||
| 備考 | お問い合わせは→03-3380-7556まで☆時間外対応もしております! | ||
| 条件(その他) | 鍵交換代:2万2,000円 解約予告2ヶ月前/退去時ルームクリーニング代55,000円・エアコン清掃費1基あたり15,000円/1年未満解約違約金有 | ||
| 取扱会社 |
|
||
| QRコード |
このQRコードを読み取ることで、スマホでも物件情報を確認できます。 |
||
※地図上に表示される物件の位置は付近住所に所在することを表すものであり、実際の物件所在地とは異なる場合がございます。
中野区本町1丁目のマンションに関するこだわり条件から探す